多多文库 ddwenku.com
海量文档资源,专业知识分享平台
个人中心
签到有奖
搜索文档
首页
管理资料
行业资料
教育资源
标准规范
范文总结
素材图库
其他资料
首页
>
图纸模型
>
建筑图纸
> >
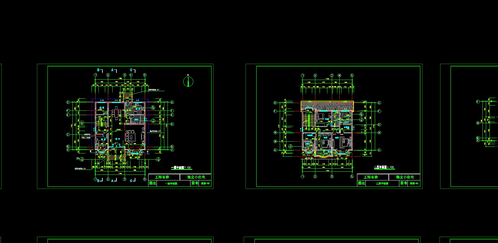
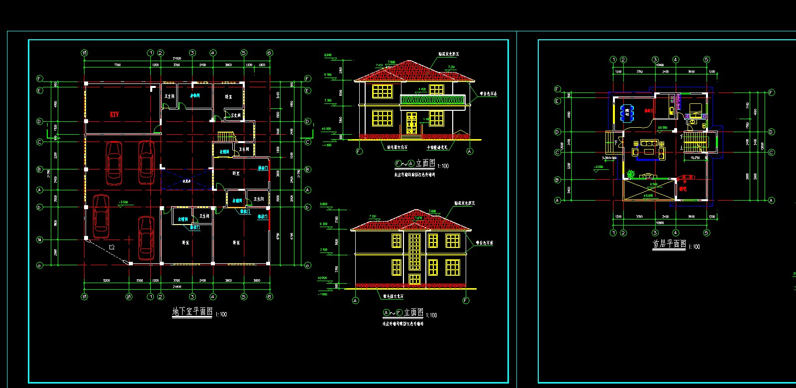
21套豪华别墅建筑设计施工图
21套豪华别墅建筑设计施工图
2024-11-10
浏览次数:
3
内容介绍
21套豪华别墅建筑设计施工图
进入下载地址页
点击按钮前往下载
大小:
40.95MB
类型:
dwg
你是我的妍
你是我的妍
上传者
优质作者 已上传10+资料
相关推荐
建筑安装工程施工图集 (第二版) 7 常
建筑安装工程施工图集7,常用仪表工
SGTJ建筑安装工程施工图集 (第一版)
各式CAD、水暖、空调、消防施工图常
CAD建筑常用装饰天花施工图.dwg_
建筑设计常用尺寸
货币的时间价值与建筑设计方案评价_
高层建筑设计算例
深圳市建筑设计技术经济指标计算规定
建筑电气施工图工程量计算实例详解.p