多多文库 ddwenku.com
海量文档资源,专业知识分享平台
个人中心
签到有奖
搜索文档
首页
管理资料
行业资料
教育资源
标准规范
范文总结
素材图库
其他资料
首页
>
图纸模型
>
建筑图纸
> >
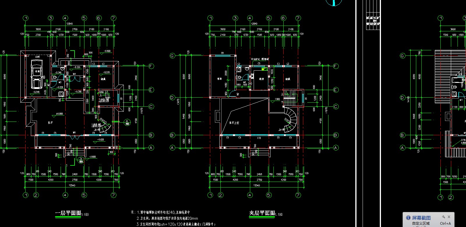
春天花园别墅建筑结构图
春天花园别墅建筑结构图
2024-11-10
浏览次数:
3
内容介绍
春天花园别墅建筑结构图
进入下载地址页
点击按钮前往下载
大小:
1.1MB
类型:
dwg
忘年岁
忘年岁
上传者
优质作者 已上传10+资料
相关推荐
建筑构造(上册)李必瑜
电力预算定额2006 第一册 建筑工程
dlysde2006-1-1建筑工程(上册)
电力建设工程预算定额第一册建筑工程
景观与景园建筑工程规划设计_上册000
02-01 电力建设工程预算定额 第一册
国统一建筑工程基础定额_土建(上册
建筑安装工程施工图集 (第二版) 7 常
苏G01-2003建筑结构常用节点图集
02J503-1常用建筑色