多多文库 ddwenku.com
海量文档资源,专业知识分享平台
个人中心
签到有奖
搜索文档
首页
管理资料
行业资料
教育资源
标准规范
范文总结
素材图库
其他资料
首页
>
图纸模型
>
建筑图纸
> >
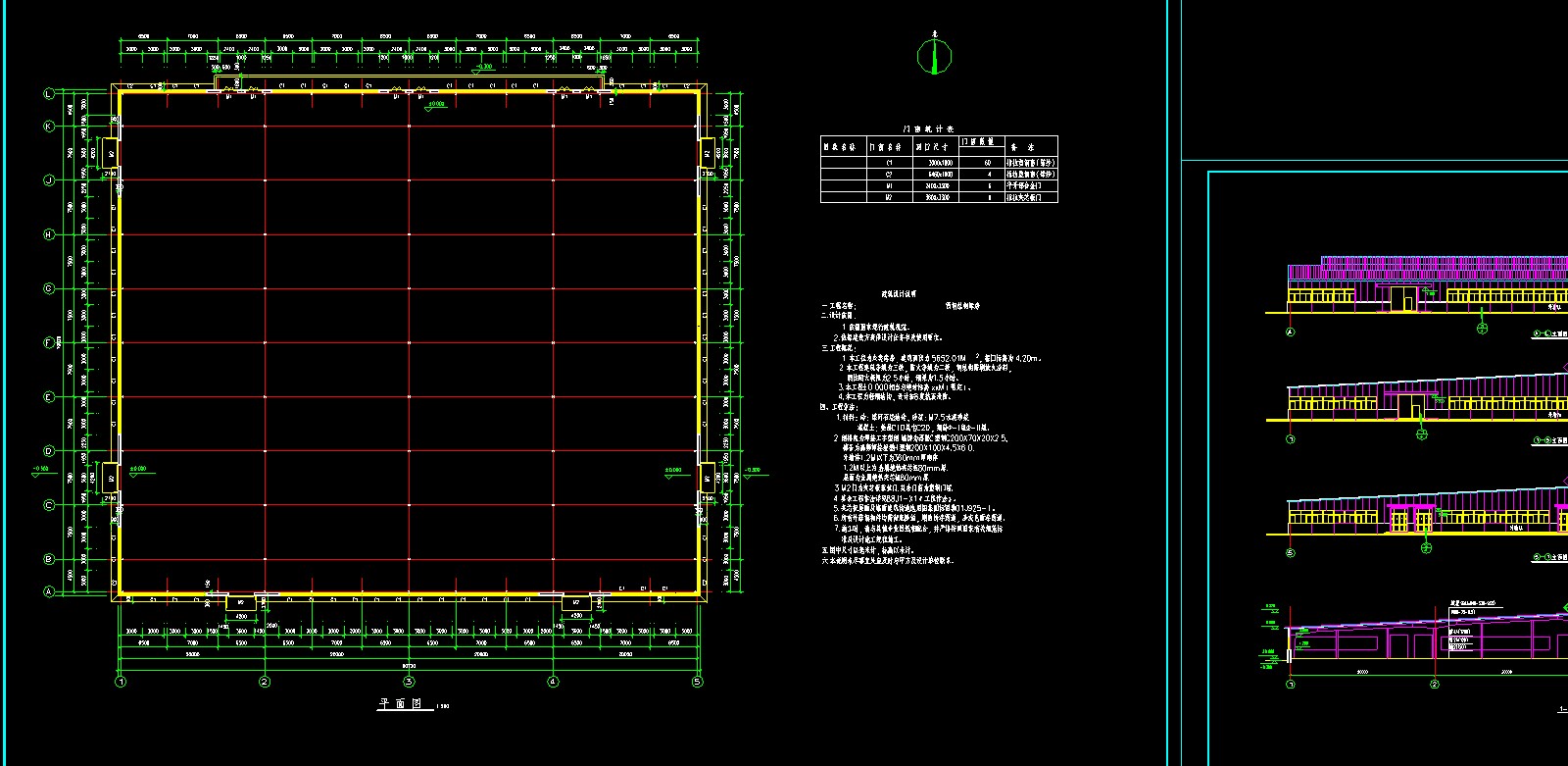
钢排架库房二建筑图
钢排架库房二建筑图
2024-11-10
浏览次数:
3
内容介绍
钢排架库房二建筑图
进入下载地址页
点击按钮前往下载
大小:
169.32KB
类型:
dwg
ID不怎么样
ID不怎么样
上传者
优质作者 已上传10+资料
相关推荐
用PK、PM进行框、排架结构计算参数分
02J404-1 电梯建筑图集
《北京建筑图说》
某大学教学楼全套建筑图.dwg_
[中国传统建筑图鉴].宋文.扫描版
中国建筑图解词典
中国古建筑图典
中国建筑图解词典(文字多图,彩色,
中国古建筑图解(彩色)
《CEBRA建筑图绘模式》