多多文库 ddwenku.com
海量文档资源,专业知识分享平台
个人中心
签到有奖
搜索文档
首页
管理资料
行业资料
教育资源
标准规范
范文总结
素材图库
其他资料
首页
>
图纸模型
>
建筑图纸
> >
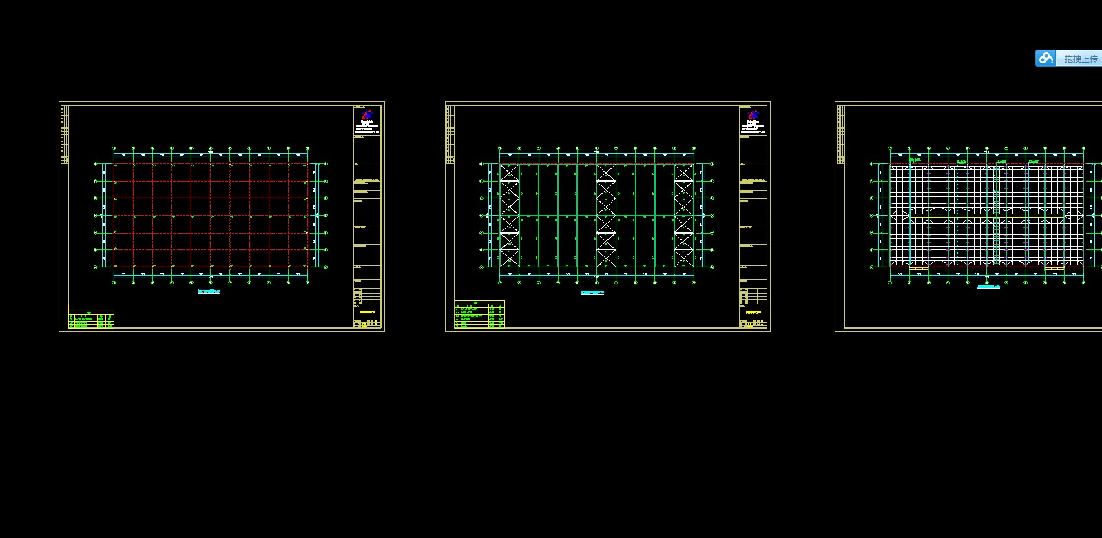
某公司40米×75米钢结构厂房图
某公司40米×75米钢结构厂房图
2024-11-10
浏览次数:
3
内容介绍
某公司40米×75米钢结构厂房图
进入下载地址页
点击按钮前往下载
大小:
3.58MB
类型:
dwg
萨摩耶柏
萨摩耶柏
上传者
优质作者 已上传10+资料
相关推荐
0073 广州市某公司通信铁塔制作安装
某公司有机农产品市场营销策划案.ppt
某公司5S计划书-xx有限公司现场管理
30m跨单层轻钢结构厂房设计图.dwg_
某公司钢结构彩钢图
某公司投资完整钢结构工程图
某公司钢结构工程设计方案图
某公司新工程设计工程图
某公司彩钢工程图
江苏常州某公司钢结构工程图