多多文库 ddwenku.com
海量文档资源,专业知识分享平台
个人中心
签到有奖
搜索文档
首页
管理资料
行业资料
教育资源
标准规范
范文总结
素材图库
其他资料
首页
>
图纸模型
>
建筑图纸
> >
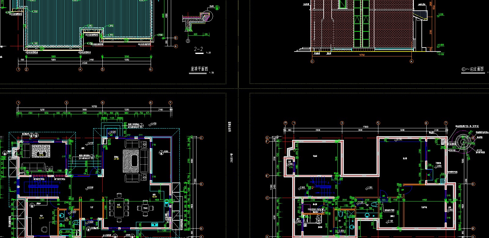
京龙花园别墅
京龙花园别墅
2024-11-10
浏览次数:
3
内容介绍
京龙花园别墅
进入下载地址页
点击按钮前往下载
大小:
5.59MB
类型:
dwg
随心所欲.
随心所欲.
上传者
优质作者 已上传10+资料
相关推荐
海景花园别墅
海景花园别墅装修图
秀山花园别墅建筑及结构施工图
世茂湖滨花园别墅建筑施工图
某花园别墅全套图
亭韵花园别墅设计A、B方案
国际花园别墅全套施工图
春天花园别墅建筑结构图
东方花园别墅全套图
迎宾花园别墅宣传语